Foto's en tekeningen van diverse projecten.

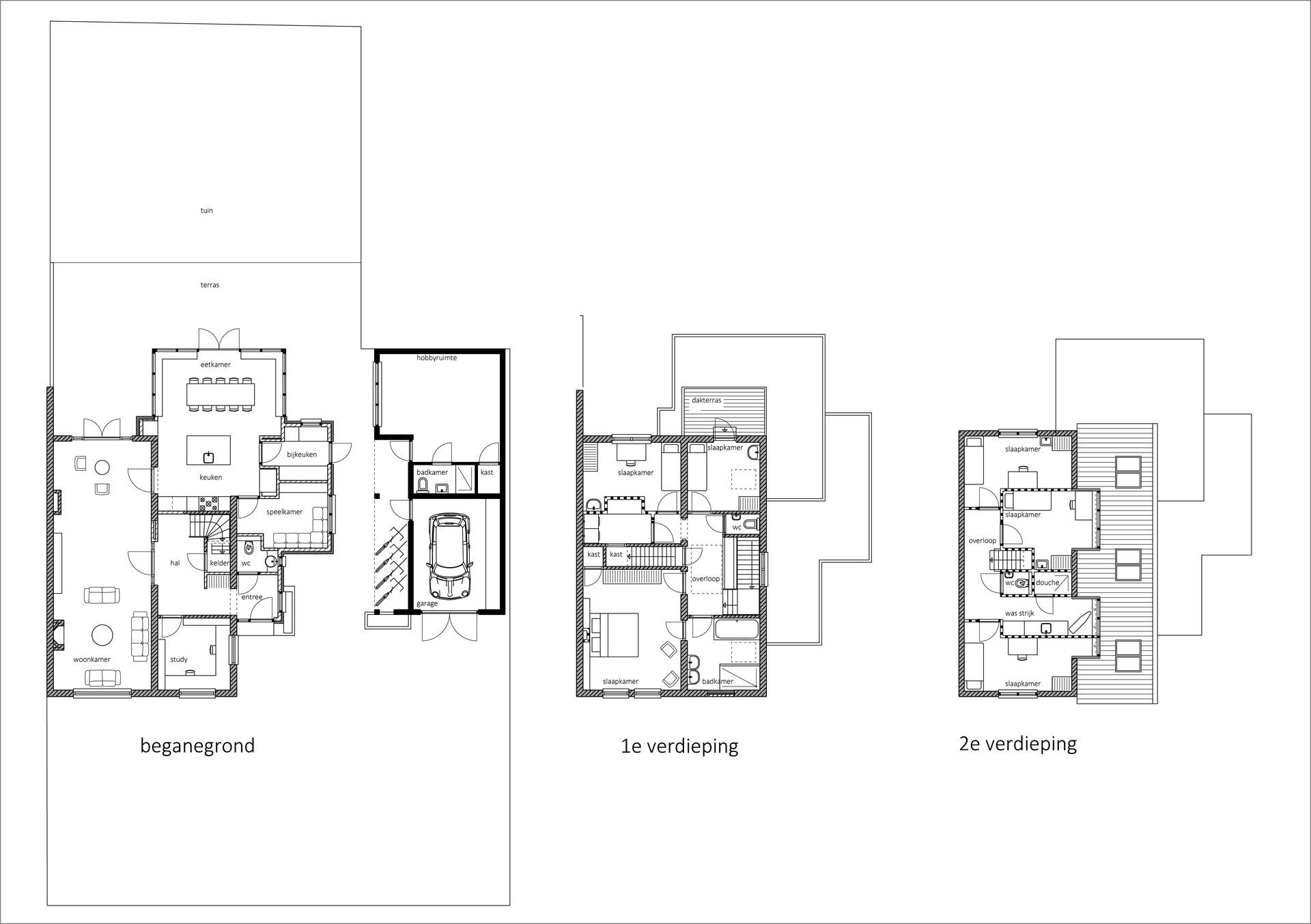
Rembrandtlaan Huis ter Heide

Jaren 30 villa voorzien van nieuwe uitbouw aan de achterzijde van ongeveer 50 m2 met 44 m2 binnen oppervlak.

Er is ruimte op de begane grond voor een riante woonkeuken en op de verdieping een slaapkamer met badkamer ensuite.

Ook de woonkamer is aan de zijkant uitgebreid met 17 m2.

Verder is het gehele huis gerenoveerd en geoptimaliseerd.

--------------------------------------

Beatrixplantsoen Amersfoort

Het in 1908 als dienstwoning gebouwde woonhuis is onderdeel van een Rijksmonument, een voormalig Rijksopvoedingsgesticht.

De bestaande uitbouw op de begane grond uitbreiden aan de achtergevel.

De nieuwe ruimte wordt een riante woonkeuken van 44 m.

Voor extra daglicht zal een lichtstraat van 1x3 m. worden geplaatst.

Start werkzaamheden voorjaar 2026.

--------------------------------------

Minervalaan  Amsterdam

Verbouwing van een jaren 60 villa in Amsterdam Zuid.

Indeling begane grond wijzigen voor een meer centrale eetkeuken en een optimale routing.

Nieuwe muur openingen voorzien van stalen taatsdeuren en schuifdeuren met glas openingen.

Op de verdieping 2 nieuwe badkamers en kleine wijziging van de indeling. 

De inpandige garage is omgebouwd tot een praktijkruimte.

--------------------------------------

De Ginckellaan Huizen

Jaren 60 bungalow voorzien van nieuwe verdieping op de hoofdbouw.

Aan de woonkamer en de keuken 2 nieuwe serre's met veel glas en platte daken met ruime overstekken over het terras.

Op de nieuwe verdieping een grote overloop, 4 slaapkamers en een extra badkamer.

--------------------------------------

Cronjélaan Zeist

Uitbreiding van een karakteristiek woonhuis met mansardekap aan de zijgevel. De uitbreiding is geheel in stijl van het bestaande woonhuis en omvat 3 woonlagen, kelder, begane grond en verdieping. Ontwerp en uitvoering zorgen voor een enorme ruimte winst zonder het karakter van het woonhuis aan te tasten.

--------------------------------------

Julianaweg Doorn

Verbouwing en uitbreiding van een jaren 20 woonhuis in Doorn.

De bestaande kleine keuken (7 m2) aan de achterzijde wijzigen in een riante woonkeuken (28 m2) met nieuw keukeneiland en fantastisch uitzicht op de tuin.

Nieuwe gevels in metselwerk als bestaand met rollagen en verbanden.

Nieuwe hardhouten ramen en deuren in stijl van de bestaande met glas in lood in de bovenlichten.

--------------------------------------

Coehoornstraat Utrecht

Nieuwe dakopbouw op het bestaande platte dak van kleine stadswoning in Utrecht.

De extra verdieping zorgt voor een fijne uitbreiding van het woonoppervlak, en door de vele ramen voor daglicht en uitzicht.

De geïsoleerde dakgevels zijn afgewerkt met een zinklook systeem in kleur.

Geheel voorzien van aluminium kozijnen.

--------------------------------------

Durgerdamhaven Amersfoort

Uitbreiding van een markant woonhuis in Vathorst.

Aan de achterzijde op het bestaande dakterras een extra slaapkamer van ca. 16 m2.

Uitvoering kozijnen en gevelbekleding als bestaand in geprepatineerd koper. 

--------------------------------------

Ruiterweg Laren (nh)

Opdracht om de bestaande serre, die niet meer voldeed qua uiterlijk en wensen, te vervangen door een uitbouw met plat dak. Ontwerp en uitvoering geheel in stijl van het bestaande woonhuis. Helder ontwerp en duidelijke tekeningen zorgden voor een geslaagd project en een tevreden opdrachtgever.

--------------------------------------

Algolweg Amersfoort

Renovatie van een kantoor gebouw in Amersfoort.

De bestaande indeling is eenvoudig gewijzigd, de buitenzijde optisch sterk verbeterd door contrasterende kleurstelling.

Een nieuwe lift aan de voorgevel naast de entree, geeft het geheel een meer eigentijdse uitstraling.

--------------------------------------

Vakantiewoning Italië

Ontwerp en aanvraag tekeningen voor de renovatie van een landelijk woonhuis in Italie.

Het gerenoveerde huis zal worden

gebruikt als vakantiewoning.

Totale renovatie binnen en buitenzijde.

Wijziging van de indeling.

Nieuwe badkamers, nieuwe keuken.

Nieuwe ramen en deuren rondom.

Aan de kopgevel een nieuw afdak.

Binnenkort foto's van de bouw.

------------------------------------


Dakopbouwen

Ontwerp en bouwaanvraag voor allerlei dakopbouwen, dakhuisjes en dakterrassen.

Een dakopbouw is relatief eenvoudig te realiseren en geeft vaak voldoende extra oppervlakte waardoor verhuizen misschien niet meer nodig is.

------------------------------------



Recente Projecten


Molenvlietbaan  Woerden

Berglustlaan  Rotterdam

Beatrixplantsoen   Amersfoort

Goudsbloemstraat   Amsterdam

Guesthouse Galicië Spanje

Van Linschotenlaan   Amersfoort

Vakantiewoning   Corinaldo  Italie

Herindeling Eethuis   Amsterdam

Rondeelstraat   Amersfoort

Agatha Dekenstraat   Amsterdam

Verbeeklaan   Blaricum

Vakantiewoning  Calahonda  Spanje

Groeneweg    Weesp

Rembrandtlaan   Huis ter Heide 

Liendertseweg    Amersfoort 

Beetzlaan    Soest 

Scheepersstraat    Haarlem 

Gravenstraat    Amsterdam

Weerwal   Purmerend   

Heelkruid    Amersfoort 

Cronjélaan   Zeist 

Burgerhartsingel    Amersfoort   

De Ginckellaan    Huizen

Ruiterweg    Laren (nh)   

Wilhelminaweg   Amerongen 

Van Rossumlaan    Naarden 

Oude Postweg    Austerlitz     

Parkstraat    Baarn 

Vechtdijk    Utrecht   

Rijksstraatweg    Elst

Minervalaan   Amsterdam                     

Parkstraat Baarn


--------------------------------------